
This Two Storey Contemporary Home Design has a total floor area of 185 square meters that can be built in a lot with at least 16 meters width. The captivating front elevation which shows the brown color scheme with white linings for the pedestals.
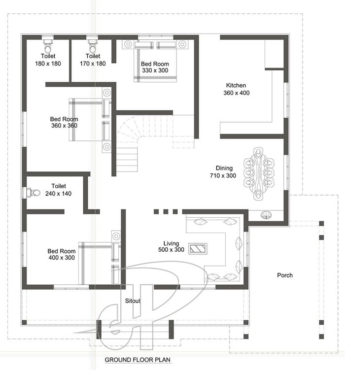
Elevated sit-out for 3 steps or 450 mm from the elevation of the porch. Meanwhile, this area is surrounded by a low wall concrete hollow block materials with concrete capping to serve as sitting area/
The overall color scheme for most of the walls is cream color with some white accents lines and moldings. The curved type metal roofing also gives an impact on the whole roofing system.

Ground floor consists of the sit-out, porch, living room, dining and kitchen and the 3 bedrooms with en-suit toilet and bath for each room.

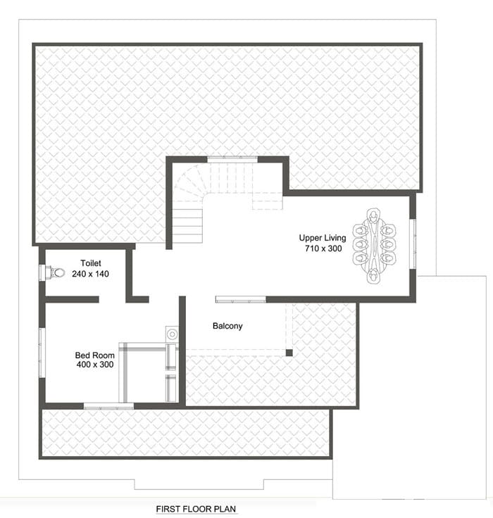
The first floor can be accessed by the stair at the ground floor located at the center of the house. As you can see in this floor it has a grand balcony the the back which can be a good place for small gathering or a venue for birthdays for family members.
The upper living serves as a family room, a good place for family bonding or recreation room intended for the bedroom nearby. Bedroom on this floor can be a master’s bedroom with 4 meters by 3 meters. Balcony is accessible from the door at the front.

How much would be the cost to construct this Two Storey Contemporary Home Design?
Below area rough estimates based on the total floor area of the house. This consists of the floor area at the ground floor plus the floor area of the first floor plan. Indicated amounts are in Philippine Peso (Php) which includes labor and materials.
- Rough Finished Budget: 2,220,000 – 2,590,000
- Semi Finished Budget: 2,960,000 – 3,330,000
- Conservatively Finished Budget: 3,700,000 – 4,070,000
- Elegantly Finished Budget: 4,440,000 – 5,180,000
This design may not be for all but those who are looking for more extravagant and bigger space for family members this two storey contemporary home design would be a great choice.
Source: contemporary home

Be the first to comment