
Building your own house today would be a great deal financially due to the cost of materials and labor. This two bedroom home design with 95 sq.m. floor area offers an economical aspects since the area is not big but still a complete and functional house.
Simple yet modern in design, this house offers amenities same as a luxury house only in a small scale. With its appearance, the color combination is very neutral yet vibrant when seeing the front facade. Walls are plain white white dark grey combination at the lower part indicating the elevated portion of the house. Brick accent wall is also present at the front Bedroom along the corner od the house, separated by a concrete ledge or canopy.
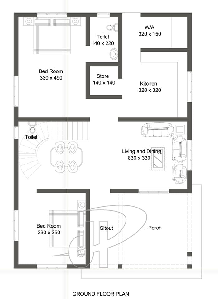
Now lets go into details with the floor plan below. The ground floor plan, consist of the porch, sit-out, living room, the 2 bedrooms, dining, kitchen and work area; and the 2 toilet and bath.

Significant in kerala home design, there is always a sit-out and porch which can also serve as a garage. Combined living and dining area is a wise decision in the layout to make the area more, with 8.30 meter by 3.3 meters. Bedroom at the front is 3.30 meters by 3.50 meters in size with built-in cabinets. Also in the vicinity, the stair is located at the dining area with a common toilet and bath underneath the stair landing.


PLAN DETAILS
- One Story House Plans
- Beds: 2
- Baths: 2
- Floor Area: 95 sq.m.
- Porch
- Sit out
- Living
- Dining hall
- Kitchen
- Work area
- Stair case
ESTIMATED COST RANGE
Budget in different Finishes. Values shown here are rough estimate for each finishes and for budgetary purposes only. Budget already includes Labor and Materials and also within the range quoted by most builders. Budget Currency is in Philippine Peso (Php).
- Rough Finished Budget: 1,140,000 – 1,330,000
- Semi Finished Budget: 1,520,000 – 1,710,000
- Conservatively Finished Budget: 1,900,000 – 2,090,000
- Elegantly Finished Budget: 2,280,000 – 2,660,000
Source: keralahomedesignz

Be the first to comment