
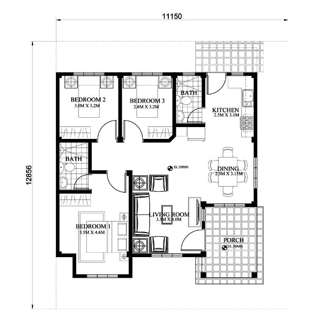
PHP-2015022, is a 3 bedroom 2 toilet and bath small efficient house plan with porch and also a single attached house. Good living is experienced in this house plan with a total floor area of 93 sq.m..
Bedroom 1 which can also be a master’s bedroom has its own Toilet and bath and optional built-in cabinets. The other 2 bedrooms which is located opposite to the master’s bedroom share a common toilet and bath at the kitchen area.
The porch will welcome you to enter the living room strategically located at the center of this small efficient house plan and all the way to the open dining and kitchen. A well defined kitchen has a L-type counter which is very efficient for space saving.

The exterior of Pinoy house plan – 2015022 is a stone veneer accent in the master’s bedroom, fixed window above for efficient lighting, concealed roof drains, wrought iron windows and long span tile effect roofing. Specially designed for lots with 11 meters frontage, this house plan can be built in a 150 sq.m. lot.
As can be noticed, this is only a variation of color and design from small house design SHD-2015013 from pinoy eplans.



HOUSE PLAN DETAILS
- Plan#: PHP-2015022
- Small House Plans
- Beds: 3
- Baths: 2
- Floor Area: 93 sq.m.
- Lot Size: 150 sq.m.
ESTIMATED COST RANGE
Budget in different Finishes. Values shown here are rough estimate for each finishes and for budgetary purposes only. Budget already includes Labor and Materials and also within the range quoted by most builders. Budget Currency is in Philippine Peso (PHP).
- Rough Finished Budget: 1,116,000 – 1,302,000
- Semi Finished Budget: 1,488,000 – 1,674,000
- Conservatively Finished Budget: 1,860,000 – 2,046,000
- Elegantly Finished Budget: 2,232,000 – 2,604,000
CONTACT US
[contact-form-7 id=”1924″ title=”support@pinoyhouseplans.com”]

Be the first to comment