
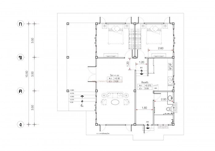
This house concept has 2 bedrooms, one bathroom, kitchen, combined living and dining and wide porch. The total floor area of this design is 110 square meters with 10.5 meters width and 11 meters depth. Minimum lot requirement is 13.5 meters to insure 1.5 meters setback on both sides and 15.5 meters depth if the setback at the rear is 1.5 meters and 3 meters at the front.
The elevated feature of this house makes sure that the house is safe from low flooding specially if the location of the house is a low area. The six steps equates to 0.90 meters granting that one step is 150 mm. This is also an advantage feature of the house since it also insure privacy to the owner due to its elevated floor.










Please be sending me some of this building plans
Hi, i really like this one. Where can i buy the complete set of plans?
I’m a student studying designs, can I ask for the complete plan of this house, including architectural, structural, electrical, sanitary, and mechanical plan? it is for student purposes only. Thank you!