![hh-900x444 This modern single floor house has 3 bedrooms. [Image Credit: My Home My Zone]](https://php.pinoyhousedesigns.com/wp-content/uploads/2017/12/hh-900x444-1.jpg)
Modern houses offer a great alternative to the more traditional house styles. Even if you do not want to go ultra-modern all the way, there are a lot of modern styled houses that still look modern and liveable in appearance.
If you choose a modern house plan as the basis of the design of your the home of your family, you are veering off the use of the traditional style. This modern single floor home plan is designed to look modern in appearance but still provide comfort and space for your house.

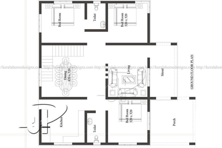
This modern house is designed in 102 square meters or 1097 square feet. It is complete with a car porch, a sit out before you enter the house, a spacious living room, a dining hall, three bedrooms, two toilet and baths, and a kitchen.
What makes this house modern is its unique elevation that mounts the two bedrooms making it look like a second floor.
The outside of the house is cleanly painted in clean pinkish hue with green accents. There are also clear windows installed around the house which lets the light pass through the glass to light up the whole home.
The house is also surrounded by a lawn and trees, making it airy around the house.

Taking a closer look at the floor plan, the porch and the sit out is the first thing that you can see once you arrive at the house. The living room is spacious enough to accommodate guests of the family. The garage can fit one family car, and the kitchen and dining hall are separate, too.
This modern single floor home plan is designed to build in 102 square meters and includes three bedrooms, an attached toilet and bath, a sit out, a living room, a common bathroom, a kitchen, and a dining hall.

Be the first to comment