Modern double-storey house with five bedrooms

If you have a big family it is a requirement that your house is big to accommodate all the members of the family and their things too.  If there are six members of your family, you need  at least a four-bedroom house.  Two kids will occupy each room.  You can also install a convertible sofa bed in your living room for your kids to use for sleeping.  Anyways, check this five-bedroom double-storey house.  This may be the design that you are looking for.

This double-storey house is an ideal home for a family with 5-6 members. If a couple has 6-7 children, this work well for them. The couple will stay in one room while their kids will share the four other rooms.  If kids are younger, it is not a problem having them stay together in one room.  Girls stay with girls while boys stay with boys.  When they are older and will be in college or will be working they will look for themselves their own place to stay so don’t worry about it.

The rough estimate to build this house is USD30,000 – this is just for the building, the materials and labor cost. To make it ready for occupancy, you can dole out another USD10,000 or more depending on your lifestyle.  The furnishing, furniture, and fixture that you want to put in your house determine the total cost.  So, what we tell you here is just an estimate so you can have an idea at least how much does it cost to build this house.

Product Specifications:

  • double-storey home
  • four bedrooms
  • worship room
  • 2 bathrooms
  • 2 living room
  • kitchen and dining
  • Budget: USD 160,000 – 200,000 or Php8-10M

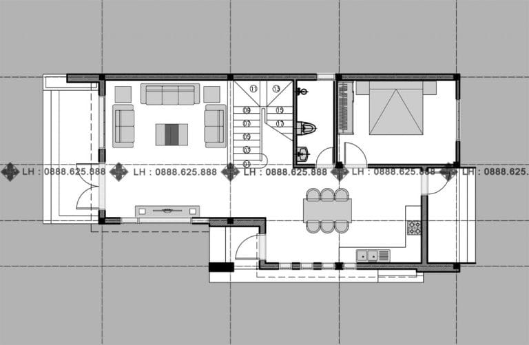
The floor plan of this house shows that he ground floor has one bedroom while the other four bedrooms are located in the upper floor.  One room is actually a worship room, this is required for families who pry together and require to have an altar for their prayer bonding.  If you don’t need a worship room, you can make this room into another bedroom.

You may want to check our other websites, as well.  You can click on the following hyperlinks and you will be redirected to the websites. There are many designs for you to choose from.  Each design has its own unique features where you may get ideas from to build your own. If you like the design, please don’t forget to share on your wall for others to see. Sit back and enjoy. Visit us again soon. Thank you!

  1.  Cool House Concepts
  2. House And Decors
  3. Ulric Home
  4. Pinoy Eplans
  5. OFW House Designs

Thank you for this wonderful house design.

Be the first to comment

Leave a Reply