Elvira – 2 Bedroom small house plan with Porch

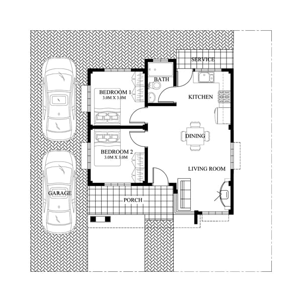
Elvira model is a 2-bedroom small house plan with porch roofed by a concrete deck canopy and supported by two square columns.

This house plan has an open garage that can accommodate 2 cars. Why open garage? simply because, client have option to choose from an open and roofed one. Design can always be customized to add roof on the garage. The porch is 4.5 x 1.5 m in size having 2 steps elevating it to 300 mm from the ground or the floor level in the garage. The roof of the porch is a solid reinforced concrete supported by a twin column on the left side adding some style on the front elevation.

Upon entering the main entrance, you can see that the room is all the way thru the kitchen. Living room and dining is somewhat combined, but putting s mall dining table can give more space for the living area. The 2 bedrooms sized at 3 x 3 m is laid out on the left side of the house sharing a common toilet and bath located near the kitchen.

Going out to the service area, there is still an ample space at the back since the minimum setback can be 1.5 m to 2 m. Concrete paver tiles are connected to the garage on the rear to enhance continuity of access. Elvira model can be constructed in a lot of 12.65 x 12.65 m in size or approximately 160 sq.m. in lot area.

With this area the setbacks are 3 meters  from the left side to accommodate the garage, 2 meters on the right side including the rear and 3 meters at the front.

How about smaller lot sizes? Well this house plan can still be accommodated in narrow lots by modifying the right side wall to a fire wall. Therefore with a 10.65 x 12.65 m lot will be the minimum lot size, still accommodating the garage and maintaining the minimum setbacks.

Aluminum framed windows, porch roofed by concrete deck, stone veneer accents  and long span roofing are the main features of Elvira. Check more small house plans with porches here at pinoyhouseplans.com.

HOUSE PLAN DETAILS

  • Plan#: PHP-2015018
  • Small House Plans
  • Beds: 2
  • Baths: 1
  • Floor Area: 60 sq.m.
  • Lot Size: 160 sq.m.
  • Garage: 2

ESTIMATED COST RANGE

Budget in different Finishes.  Values shown here are rough estimate for each finishes and for budgetary purposes only. Budget already includes Labor and Materials and also within the range quoted by most builders. Budget Currency is in Philippine Peso (PHP).

  • Rough Finished Budget: 720,000 – 840,000
  • Semi -Finished Budget: 960,000 – 1,080,000
  • Conservatively Finished Budget: 1,200,000 – 1,320,000
  • Elegantly Finished Budget: 1,440,000 -1,680,000

CONTACT US

[contact-form-7 id=”1924″ title=”support@pinoyhouseplans.com”]

1 Comment

Leave a Reply